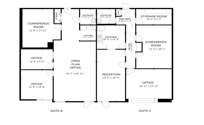
Rare opportunity to acquire two adjacent office condominiums totaling approximately 2,400 SF along the highly visible US-41 corridor in St. John, near the Schererville border. Monument signage opportunity provides excellent business visibility with strong daily traffic exposure. The combined offering includes two 1,200 SF office suites that can function independently or be combined to create a larger professional office environment. The spaces feature a mix of reception areas, open workspaces, enclosed offices, conference rooms, kitchen facilities, restrooms, and storage, providing a flexible layout suitable for a wide range of professional or service-based businesses. This configuration offers multiple possibilities for buyers, including occupying both suites for expanded operations, customizing the layout into a larger office footprint, or occupying one unit while leasing the other for income potential. The reception and office layouts may also lend themselves well to medical, dental, wellness, or other client-service professional practices. The property is part of a tenant-managed HOA. Both units are currently vacant and available for immediate occupancy or tenant placement. Owner financing may be considered for qualified buyers, offering additional flexibility for acquisition. These Suites are also listed in the MLS for individual sale.